网站首页
关于星空网页版官网_星空(中国)
产品世界
新闻资讯
工程案例
售后服务
全国网点
星空网页版官网_星空(中国)
合格证真伪查询
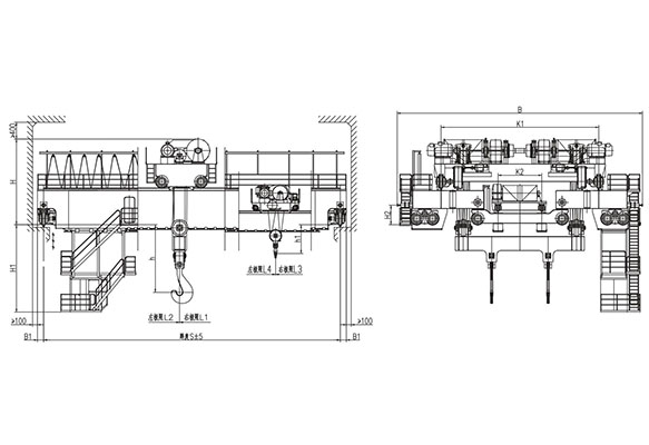
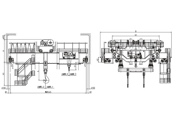
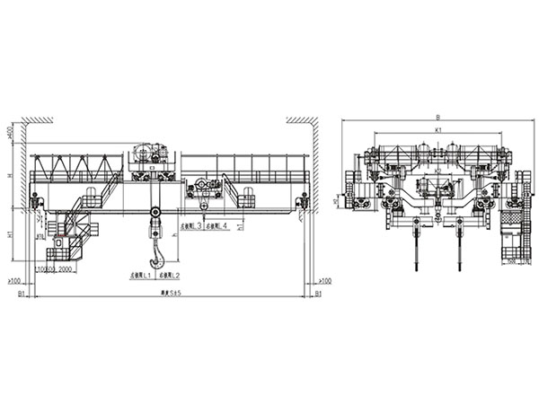
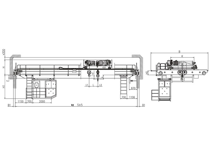
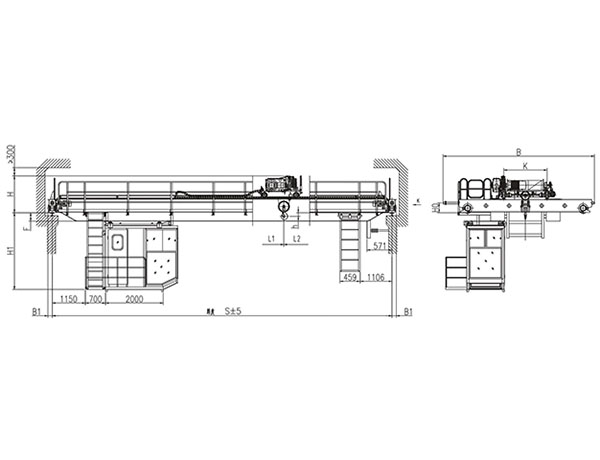
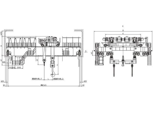
双梁起重机
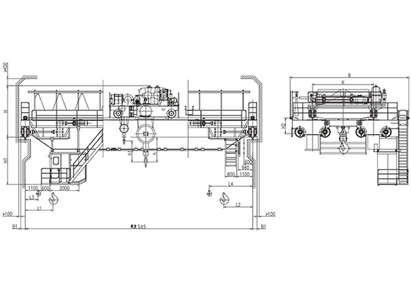
QDY型16、3.2~20、5t冶…
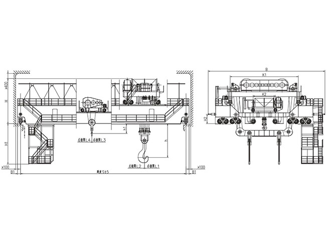
QDY型32、5~50、10t冶金…
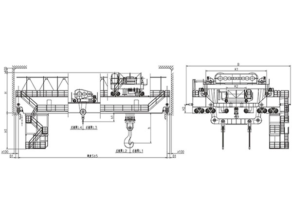
QDY型74、20t冶金起重机…
YZ型100、32~125…
YZ型125、32~140、40t铸…
YZ型140、40t铸造起重机…
YZ型160、40t铸造起重机…
YZ型180、50~240、75t铸…
YZ型280、75~320、80t铸…
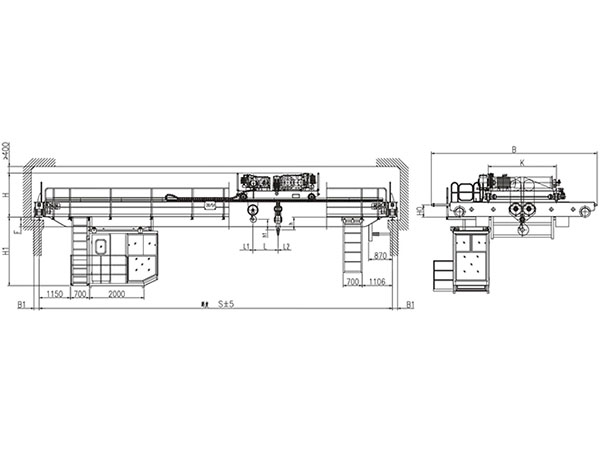
5~10t欧式吊钩桥式起重…
16~20t欧式吊钩桥式起重…
32~50t欧式吊钩桥式起重…
总共 63 条记录 每页 12 条 共 6 页 当前第 3 页
首页
上一页
1
2
3
4
5
6
下一页
尾页
中欧在线平台
|
九游app官方端入口
|
开云在线官方网站
|
多宝·duobao官方网站
|
中欧注册_中欧(中国)
|
安博网页版
|
开云线上平台(集团)官方网站
|
开云线上平台(集团)官方网站
|
华体会线上平台(集团)官方网站
|