网站首页
关于星空网页版官网_星空(中国)
产品世界
新闻资讯
工程案例
售后服务
全国网点
星空网页版官网_星空(中国)
合格证真伪查询
双梁起重机
75、25t通用桥式起重机…
300、75t通用桥式起重机…
QD新型桥式起重机…
QYZ加气块起重机
QZ型抓斗桥式起重机&nb…
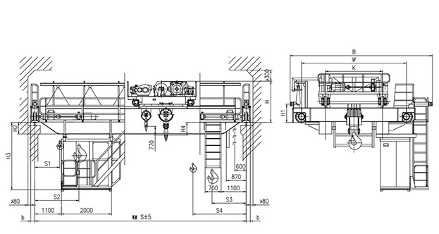
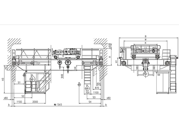
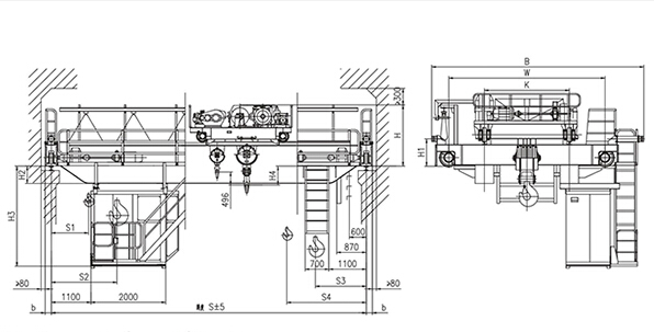
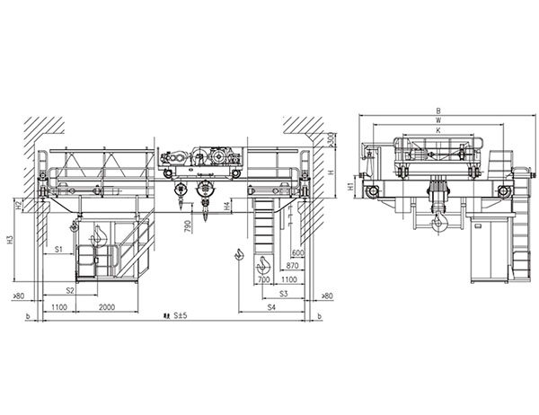
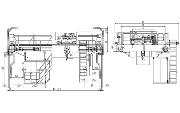
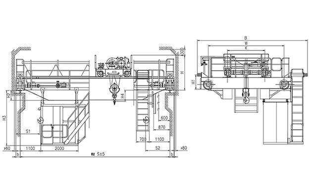
QD型5~800、150t吊钩桥…
QD型5t吊钩桥式起…
QD型10t吊钩桥式起重机…
QD型16、3.2t吊钩桥式起…
QD型20、5t吊钩桥式起重…
QD型32、5t吊钩桥式起重…
QD型50、10t吊钩桥式起…
总共 63 条记录 每页 12 条 共 6 页 当前第 1 页
首页
上一页
1
2
3
4
5
6
下一页
尾页
中欧在线平台
|
九游app官方端入口
|
开云在线官方网站
|
多宝·duobao官方网站
|
中欧注册_中欧(中国)
|
安博网页版
|
开云线上平台(集团)官方网站
|
开云线上平台(集团)官方网站
|
华体会线上平台(集团)官方网站
|