网站首页
关于星空网页版官网_星空(中国)
产品世界
新闻资讯
工程案例
售后服务
全国网点
星空网页版官网_星空(中国)
合格证真伪查询
资质荣誉
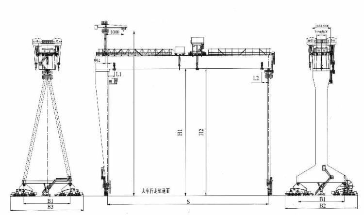
MU型造船门式起重机
架桥机
安全生产许可证
建筑业企业资质证书
职业健康安全管理体系认…
环境管理体系认证证书
质量管理体系认证证书
特种设备制造许可证
计量合格确认证书
荣誉证书
总共 10 条记录 每页 12 条 共 1 页 当前第 1 页
首页
上一页
1
下一页
尾页
中欧在线平台
|
九游app官方端入口
|
开云在线官方网站
|
多宝·duobao官方网站
|
中欧注册_中欧(中国)
|
安博网页版
|
开云线上平台(集团)官方网站
|
开云线上平台(集团)官方网站
|
华体会线上平台(集团)官方网站
|